Skip to main content
  • XS 68 Fenêtres, CW 65-EF Murs rideaux, ConceptSystem 77 Fenêtres et CW 50-SC Murs rideaux - Congress center Etopia Centre for Art and Technology situé à Zaragosa, Espagne
  • XS 68 Fenêtres, CW 65-EF Murs rideaux, ConceptSystem 77 Fenêtres et CW 50-SC Murs rideaux - Congress center Etopia Centre for Art and Technology situé à Zaragosa, Espagne
  • XS 68 Fenêtres, CW 65-EF Murs rideaux, ConceptSystem 77 Fenêtres et CW 50-SC Murs rideaux - Congress center Etopia Centre for Art and Technology situé à Zaragosa, Espagne
  • MCBAD/Colomer Dumont

Etopia Centre for Art and Technology

Zaragosa - Espagne - 2012

Etopia, le Centre d’Art et de Technologie (Centro de Arte y Tecnologia) de Saragosse, en Espagne, est non seulement accueillant et lumineux mais aussi solide et moderne. Cet espace ouvert permet aux artistes, aux ingénieurs et au grand public de se rencontrer. Le bureau d’architecture MCBAD/Colomer Dumont a conçu un bâtiment expressif à la croisée des chemins entre la recherche, l’art, l’économie, la communication, la culture et la technologie.

L’emplacement même de ce bâtiment est extraordinaire. Etopia fait partie de « La Milla Digital » (le mille numérique), une zone de développement et d’activité dans le secteur des technologies numériques et des médias qui relie le centre de Saragosse aux anciens sites de l’Exposition internationale. Au centre de ce plan se trouve la gare de trains à grande vitesse Delicias. Situé juste en face de la gare, le centre Etopia et cette dernière sont reliés par un élégant pont suspendu pour piétons. Etopia est ainsi ancré dans son environnement tout en restant connecté au monde extérieur.

 

La composition du bâtiment reflète le besoin de rationalité croissant qui règne en Espagne ces dernières années. La crise financière et la faillite de projets extravagants et flamboyants ont entraîné une réflexion sur la forme de l’architecture. Les architectes du bureau MCBAD ont toujours eu une préférence pour les lignes claires, les volumes réguliers, mais dans le cas présent, le résultat se veut également une reflexion sur l’évolution de la société espagnole. La sobriété de l’exécution permet de créer une unité visible même lorsque le complexe est observé de loin. Trois blocs de proportions comparables sont connectés par un linteau de deux étages ouverte en plusieurs endroits et reliée au parc environnant.

XS 68 Fenêtres, CW 65-EF Murs rideaux, ConceptSystem 77 Fenêtres et CW 50-SC Murs rideaux - Congress center Etopia Centre for Art and Technology situé à Zaragosa, Espagne

Les différentes façades affichent de subtils contrastes

ESPACE DE RENCONTRE

Trois vastes espaces de deux étages ont été créés dans les 16 000 mètres carrés de surface au sol, soulignant ainsi l’objectif primaire de ce bâtiment: permettre les rencontres. Cet espace ouvert permet à tout un chacun, homes d’affaires, artistes, ingénieurs, etc. d’organiser des ateliers, des groupes de réflexion, des sessions de formation et de développer et partager des idées. Cet espace se veut également une plateforme pour les start-up et les jeunes entrepreneurs. Plusieurs salles ont d’ailleurs été créées pour les nouvelles entreprises autour du hall d’entrée et de la salle de conférence, dans une zone où l’ambiance se veut moins publique et plus intime. Cette flexibilité et ce caractère informel visent à stimuler les échanges entre les entrepreneurs et le contact avec les clients potentiels. C’est ainsi que le climat social peut influencer de façon positive le climat économique.

 

Les différentes façades affichent de subtils contrastes. Deux blocs alternent éléments en verre et panneaux de façade en aluminium tandis que le troisième bloc est habillé d’un mur rideau en verre mat. Les différentes façades des trois volumes laissent toutes deviner les dimensions des étages qui les composent. Cette délimitation modulaire donne son cachet industriel et technologique au complexe. C’est également l’expression du processus de construction rationnel et rapide du site. Mais cette démarcation des surfaces de verre a représenté un défi technique de taille. Les profils utilisés étaient basés sur le système de façade Reynaers CW 65, avec une profondeur accrue afin d’appliquer une larger de 65 millimètres. Des points d’ancrage supplémentaires ont dû être réalisés pour fixer les panneaux de verre qui s’étendent d’un étage à un autre. Au final, les immenses façades de verre, tour à tour apaisantes, impressionnantes, invariablement élégantes, dégagent une telle impression de luminosité qu’elles semblent flotter en apesanteur.

ACCESSIBILITÉ ET LUMINOSITÉ

L’accessibilité du complexe est flagrante au rez-de-chaussée d’innombrables ouvertures. Ce sentiment d’accessibilité est essential pour l’image du centre Etopia, qui assure une fonction d’intérêt public en tant qu’un incubateur de créativité. C’est pour cette raison que le linteau se compose essentiellement de surfaces en verre qui réfléchissent plus ou moins les rayons du soleil. En ce qui concerne les étages supérieurs, les châssis de fenêtres devaient être aussi fins que possible. Les profilés de fenêtre Reynaers CS 68-HS ont été utilisés de sorte que, vus de l’extérieur, les éléments mobiles disparaissent complètement derrière le châssis fixe.

 

Ce terrain n’est pas le premier site d’une Exposition internationale tombée en désuétude. Mais la municipalité de Saragosse a tout fait pour transformer le centre Etopia en une ruche d’activités. Le projet est devenu un haut lieu de rencontre pour la population locale ainsi que pour ceux qui prennent le train pour rejoindre Saragosse. La combinaison de l’économie et de l’art, de la recherche et de l’ouverture, de l’industrie et de la créativité peut sembler contradictoire en surface, mais c’est précisément ce contraste qui donne toute sa force au projet. L’expression architectural du bâtiment reflète cette force.

XS 68 Fenêtres, CW 65-EF Murs rideaux, ConceptSystem 77 Fenêtres et CW 50-SC Murs rideaux - Congress center Etopia Centre for Art and Technology situé à Zaragosa, Espagne

Un pont pour piétons relie Etopia à la gare voisine

XS 68 Fenêtres, CW 65-EF Murs rideaux, ConceptSystem 77 Fenêtres et CW 50-SC Murs rideaux - Congress center Etopia Centre for Art and Technology situé à Zaragosa, Espagne

CW 65-EF-SG Solution de façade sur mesure

Project solution

 

Systems:

  • Bespoke solution based on CW 50 curtain wall

Project description:

An extremely large span called upon a custom-made development

  • 250 meters long x 15 meters high façade without an intermediary support
  • Façade needed to be as transparent as possible whilst avoiding deflection:
  • ° Profile width: 70 mm
  • ° Width of outside profile cap: 50 mm
  • ° Profiles connected to a slim steel structure that is fully clad on the inside with stainless steel caps
  • ° Reinforcement via 4 glass fins per façade module of 2 meters wide (each module has 4 elements on top of each other)
  • ° Tension bars are placed behind the glass fins for extra strength, stiffness and leveling of the sockets

Glass fins:

  • 650 mm deep x 40 mm thick (3 sheets of 12 mm layered glass with PVB film in between)
  • Fins are glued in an aluminium profile and then mounted on the slim steel structure
  • Weight: 225 kg per fin, 900 kg in total per module

Elements:

  • 4 elements per module
  • 75 m high x 2 meters wide
  • Total weight of 1 glazing module incl. steel structure, profiles and fins: 3.7 tonnes

Glazing:

  • Double layered glazing with a thickness of 46.5 mm (66.2/16/88.4)
  • Burglary and explosion resistant
  • Weight: 530 kg per element

Testing:

  • Air-Wind-Water tests in the Reynaers Institute
  • Water tightness up to 600Pa
  • Wind tightness (deflection) up to 1200Pa
  • Safety test up to 1800 Pa
  • ° 5 kN per elements
  • ° 54 kN per module
XS 68 Fenêtres, CW 65-EF Murs rideaux, ConceptSystem 77 Fenêtres et CW 50-SC Murs rideaux - Congress center Etopia Centre for Art and Technology situé à Zaragosa, Espagne

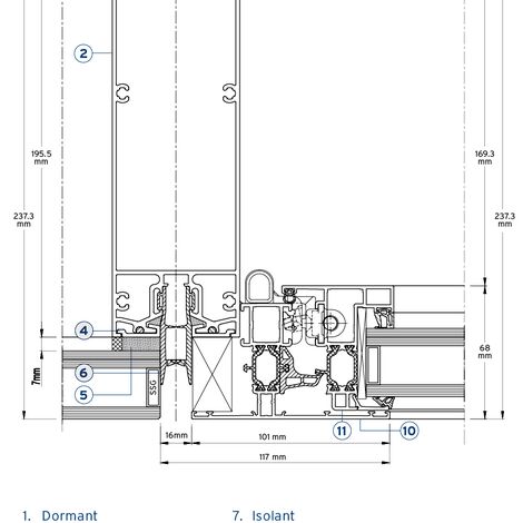
Coupe 1: CW 65-EF/SG –coupe horizontale de dormant

XS 68 Fenêtres, CW 65-EF Murs rideaux, ConceptSystem 77 Fenêtres et CW 50-SC Murs rideaux - Congress center Etopia Centre for Art and Technology situé à Zaragosa, Espagne

Coupe 2: CW 65-EF/SG – coupe horizontale de traverse avec CS 68-HV

Systèmes Reynaers utilisés

Involved stakeholders

Architect

  • MCBAD/Colomer Dumont

Fabricator

  • Eurosca

Photographe

  • Wenzel

Autres parties prenantes

  • UTE Sacyr, S.A.U. (General contractors)
  • Ayuntamiento de Zaragoza (Investisseurs)
  • Sander Laudy (Authors)