Skip to main content
  • ConceptWall 50 Murs rideaux - Bank Yapi Kredi Bank Academy situé à Istanbul, Turquie
  • ConceptWall 50 Murs rideaux - Bank Yapi Kredi Bank Academy situé à Istanbul, Turquie
  • ConceptWall 50 Murs rideaux - Bank Yapi Kredi Bank Academy situé à Istanbul, Turquie
  • ConceptWall 50 Murs rideaux - Bank Yapi Kredi Bank Academy situé à Istanbul, Turquie
  • Teget Architecture

Yapi Kredi Bank Academy

Istanbul - Turquie - 2010

Le bâtiment de l’académie Yapi Kredi Bank est l’extension d’un complexe existant situé en périphérie d’Istanbul. Les 65 000 m² du complexe bancaire ont été imaginés en 1998 par John McAslan. Composé de dix volumes cubiques regroupés dans un quadrillage élaboré, le complexe a été conçu comme un campus pour accueillir les 2 500 employés de la banque. Les volumes cubiques sont parsemés de jardins et entrelacés de rues qui permettent de relier les cubes et font office de réseau de circulation. La structure existante, avec sa texture en béton apparent et ses façades en verre teinté, évoque un environnement rigide mais confortable.

Quand la direction de la banque a voulu créer un nouvel espace pour la formation de ses nouveaux employés, elle a présenté au bureau d’architecture Teget un cahier des charges à la fois clair et simple : un bâtiment contenant de nombreuses salles de classe, un auditorium et une cantine. Le bureau aurait pu choisir de poursuivre sur la voie empruntée par McAslan en ajoutant simplement de nouveaux volumes cubiques à la structure existante. Mais le bureau d’architecture Teget a préféré se démarquer du style existant. Le nouveau bloc se compose de deux énormes barres en cuivre, qui émergent du complexe à un angle de 45 degrés. Ces deux barres abritent les salles de classe et le creux qui les sépare relie la nouvelle structure au reste du complexe. Ce creux central fonctionne comme une nouvelle rue, venue se greffer à un angle oblique au complexe existant, telle une extension naturelle du réseau de circulation du campus. L’intérieur spacieux du creux constitue le principal espace de circulation et de rencontre pour les utilisateurs.

ConceptWall 50 Murs rideaux - Bank Yapi Kredi Bank Academy situé à Istanbul, Turquie

Le nouveau bloc se compose de deux énormes barres en cuivre, qui émergent du complexe à un angle de 45 degrés

Le creux comprend des puits de lumière en forme de volcan au-dessus de l’auditorium, un large escalier en bois menant à la cantine, qui sert également de petit auditorium improvisé, ainsi qu’une fontaine à voeux sous l’escalier. Cette extrémité du creux, avec ses sols en bois, est le lieu de rencontre privilégié des étudiants. Ces différents éléments créent un environnement à la fois vivant et reposant, favorable aux rencontres pendant les pauses. Le choix des matériaux et le fait que la structure se démarque attirent invariablement le regard des visiteurs sur la nouvelle construction. Les volumes recouverts de cuivre sont suspendus au dessus du paysage escarpé, accentuant ainsi le caractère monumental de la nouvelle structure. Les blocs de salles de classe disposent de systèmes double façade, dont l’enveloppe extérieure est recouverte de plaques en cuivre fixées à un échafaudage en acier permanent. Les architectes ont créé une façade pixélisés en changeant la rotation des panneaux pendant l’habillage de l’enveloppe extérieure. Cette enveloppe extérieure en cuivre permet de contrôler l’apport excessif de lumière naturelle dans les salles de classe. Grâce à ces plaques perforées, le bâtiment est complètement opaque pendant la journée puis se transforme en lanterne pendant la nuit. Pour accroître l’impression de grandeur de ces deux barres en cuivre, la façade du creux central a été encastrée et recouverte de plaques translucides qui laissent entrer la lumière indirecte du soleil. Des bandes amovibles de tissu aux couleurs de l’académie tapissent les couloirs qui se trouvent derrière la façade intérieure du creux central.

ConceptWall 50 Murs rideaux - Bank Yapi Kredi Bank Academy situé à Istanbul, Turquie

Cantine avec fenêtre panoramique située dans la base en béton du bâtiment

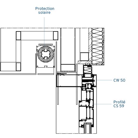
Des systèmes Reynaers ont été appliqués dans l’ensemble du bâtiment. Le système de mur-rideau CW 50 a été utilisé pour les façades extérieures situées derrière l’enveloppe en cuivre et le système Reynaers CW 50-SC a été appliqué sur les façades de transition qui relient le nouveau bâtiment à la structure existante. Pour les façades intérieures et les portes des salles de classe, les systèmes Reynaers CS 59 pour fenêtres et portes ont été installés. Les portes coupe-feu ont été réalisées avec le système Reynaers CS 77-FP. La phase de conception du bâtiment de l’académie YKB a duré six mois et la construction a été achevée en dix mois. En 2009, le projet a remporté le prix «ArchDaily’s Building of the Year», dans la catégorie «Éducation». Par ailleurs, un des principaux architectes du projet Teget, Ertug Ucar, a remporté en 2010 le prix «Arkitera Young Architect».

ConceptWall 50 Murs rideaux - Bank Yapi Kredi Bank Academy situé à Istanbul, Turquie

Façade CW 50 avec stores intégrés

Systèmes Reynaers utilisés

Involved stakeholders

Architect

  • Teget Architecture

Fabricator

  • Nasakoma

Photographe

  • Alternatif Iletisim
  • Cemal Emden

Autres parties prenantes

  • Ark Ínsaat (General contractors)
  • YKB (Investisseurs)
  • Ömer Kanipak (Authors)